
Estimasi Nilai Pekerjaan
Ciputat, Sawah Lama, Tangerang Selatan
Renovasi
Rumah tinggal
3 - 5 Ruangan
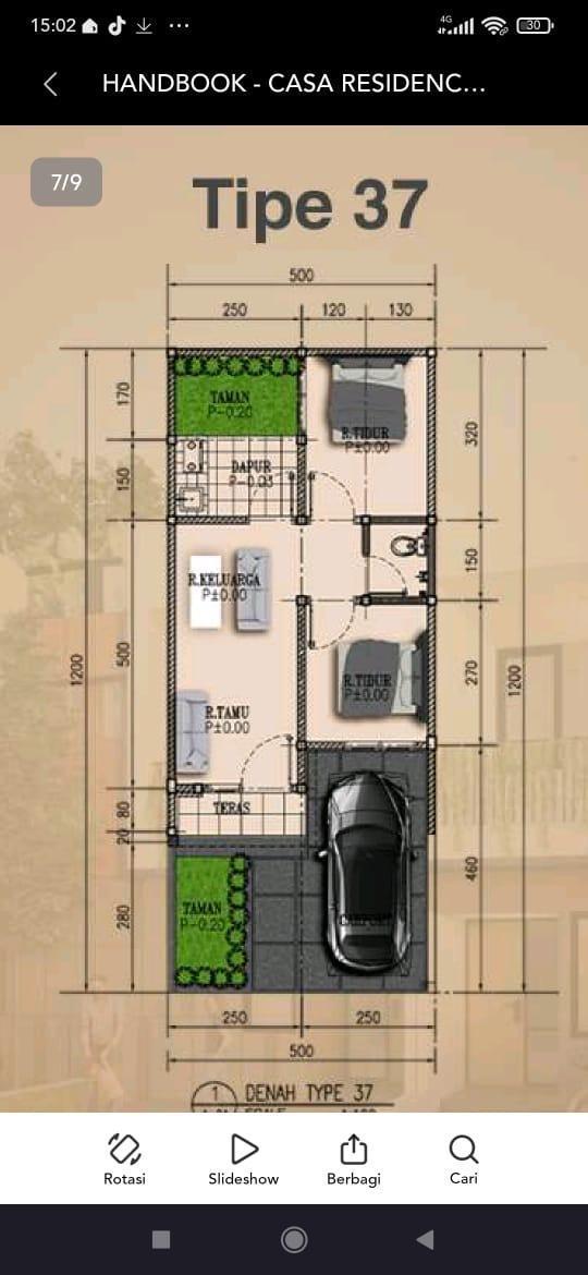
37
60
Sesuai rekomendasi
Saya mau merenovasi rumah tumbuh saya(skrng masih 1 lantai tapi pondasi ready buat 2 lantai). Mungkin di awal saya mau renov interior lantai 1 baru lalu kemudian tahap 2 jika budget cukup saya akan menaikan rumah agar jadi 2 lantai
Ya (harap lampirkan)
Belum tahu
Tidak
07-03-2026
50.000.000
Rp25.000.001 - Rp50.000.000
Saya tidak bisa mengontrol pengerjaan karena sama* kerja suami juga. Mungkin baru bisa saat weekend.

4 hari yang lalu
Tangerang Kabupaten, Banten
5 hari yang lalu
Tangerang Selatan, Banten
7 hari yang lalu
Tangerang Kota, Banten
11 hari yang lalu
Tangerang Selatan, Banten
19 hari yang lalu
Tangerang Kabupaten, Banten
23 hari yang lalu
Tangerang Kota, Banten
25 hari yang lalu
Tangerang Kabupaten, Banten
25 hari yang lalu
Tangerang Selatan, Banten
'Alhamdulillah Mas Bayu n timnya amanah, ramah, solutif dan banyak memberikan masukan untuk hasil pekerjaan yang lebih baik dengan tetap menyesuaikan kemampuan anggaran kami.'
'Very helpful!'
'Terima kasih atas kerjasamanya, pekerjaannya rapi'
'Overall saya puas dan senang dgn hasil pekerjaannya. Pekerjaan bagus dan sangat kokoh jadi tidak ada kebocoran atau kerusakan. Saya juga jadi merasa aman karena dikasih garansi sampai 1 tahun. Pekerjaan juga cepat dan tepat waktu. '
4.7 (berdasarkan hasil 13724 Review)|62 pro siap melayani anda