
Estimasi Nilai Pekerjaan
Setu, Cikarageman, Bekasi Kabupaten
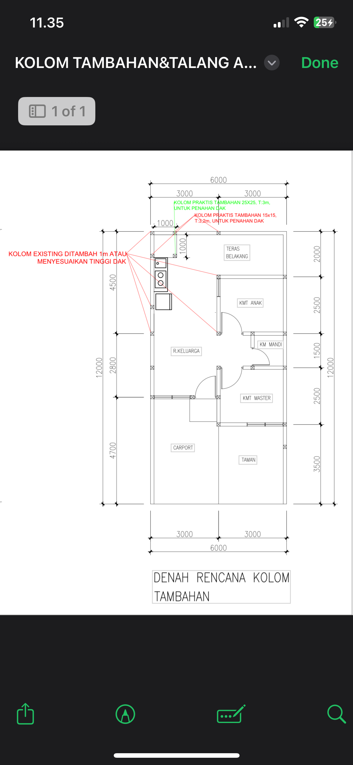
Renovasi
Rumah tinggal
1 - 2 Ruangan
15
Sesuai rekomendasi
boleh tau estimasi biayanya? untuk pengerjaan 1.bobol tembok sekat dapur dan ruang tamu 2.flooring area belakang 3.dak area belakang 4.kanopi area laundry room 5.pasang tembok area laundry room
Ya (harap lampirkan)
Tidak
Tidak
09-06-2025
40.000.000
Rp10.000.001 - Rp25.000.000

11 hari yang lalu
Depok, Jawa Barat
11 hari yang lalu
Bogor Kabupaten, Jawa Barat
13 hari yang lalu
Bogor Kabupaten, Jawa Barat
15 hari yang lalu
Tasikmalaya, Jawa Barat
20 hari yang lalu
Depok, Jawa Barat
25 hari yang lalu
Purwakarta, Jawa Barat
28 hari yang lalu
Bekasi Kabupaten, Jawa Barat
29 hari yang lalu
Bandung, Jawa Barat
'Sangat puas dengan hasil kerja dan service yg diberikan. Recommended.'
'pengerjaannya bagus, oke dan cepat dan juga orangnya koperatif'
'Pekerjaan team bapak sangat memuaskan, dan boleh buat rekomendasi juga buat teman saya'
'Hasilnya bagus, rapih. Saya sm suami puas dgn hasilnya. '
4.6 (berdasarkan hasil 13322 Review)|72 pro siap melayani anda