
Estimasi Nilai Pekerjaan
Ciputat Timur, Rempoa, Tangerang Selatan
Renovasi
Rumah tinggal
3 - 5 Ruangan
50
100
Kontraktor
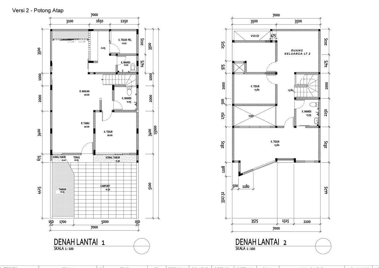
Lantai 1 Perubahan posisi pintu kaca (perluasan ruang tengah) Penambahan pintu sliding (penghubung antara dapur dan ruang tengah) Perubahan dinding dapur (perubahan dinding loster menjadi full tembok) Perubahan posisi kitchen set Penambahan jendela dapur Lantai 2 Penambahan r. tidur anak Penambahan kamar mandi Penambahan r. keluarga Penambahan akses tangga Lantai 3 Penambahan r. kerja Penambahan r. tidur ART Penambahan kamar mandi ART Penambahan area cuci jemur Tukang dilarang tidur di site
Ya (harap lampirkan)
Tidak
Tidak
05-06-2025
300.000.000
Rp100.000.001 - Rp500.000.000

5 hari yang lalu
Tangerang Selatan, Banten
8 hari yang lalu
Tangerang Selatan, Banten
9 hari yang lalu
Tangerang Kabupaten, Banten
10 hari yang lalu
Tangerang Selatan, Banten
13 hari yang lalu
Tangerang Kota, Banten
23 hari yang lalu
Tangerang Kota, Banten
24 hari yang lalu
Tangerang Selatan, Banten
25 hari yang lalu
Tangerang Selatan, Banten
'Terima kasih atas kerjasamanya, pekerjaannya rapi'
'Ahli dalam bekerja dan bekerja dengan tuntas'
'Rapi hasil pekerjaannya, istri saya juga senang. Hasilnya ok banget '
'Alhamdulillah rumah yg dikerjakan mas Vahry saya puas banget. Dengan budget yg minimalis hasil rumah saya terkesan mewah. Dan alhamdulillah juga kemaren pas ujan gede gak ada kendala, semua aman. Makasih yah mas Vahry untuk jasanya'
4.6 (berdasarkan hasil 13322 Review)|63 pro siap melayani anda