
Estimasi Nilai Pekerjaan
Jakarta Timur
Cip*******************
Renovasi
Residential/ tempat tinggal
90
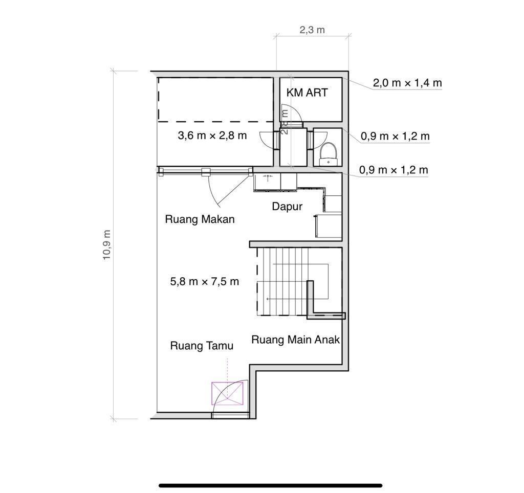
Sy cari konsultan utk mendesainkan renovasi rumah (perubahan layout) secara optimal. Serta perhitungan estimasi biaya renovasi
28-08-2023
Rp2.500.001 - Rp5.000.000

Sekitar sebulan yang lalu
Jakarta Selatan, Jakarta
3 bulan yang lalu
Jakarta Timur, Jakarta
3 bulan yang lalu
Jakarta Timur, Jakarta
6 bulan yang lalu
Jakarta Pusat, Jakarta
6 bulan yang lalu
Jakarta Selatan, Jakarta
6 bulan yang lalu
Jakarta Pusat, Jakarta
6 bulan yang lalu
Jakarta Selatan, Jakarta
7 bulan yang lalu
Jakarta Utara, Jakarta
'Kualitas kerja bagus, on time n cepat.. Harga jg kompetitif.. '
'Terimakasih Pak Willy. Pekerjaan nya cepat dan rapi.'
'Pekerjaan cepat dan rapih, diajak diskusi juga enak nyambung. Dan harga bersahabat'
'Hasil kerja pak Dwi sangat bagus dan tepat waktu, harga juga kompetitif. Next kalau saudara saya mau renov saya rekomendasikan ke Pak Dwi ya'
4.6 (berdasarkan hasil 3599 Review)|49 pro siap melayani anda